Check out those fireplaces! C. 1848 stagecoach station on nearly 8 acres in NC. $495,000.
This unique property at 393 Moltonville Rd, Clinton, NC 28328 is a remarkable historic gem, originally built in 1848 as a stagecoach station. Below are the main features and details of this exceptional home.
- Price: $495,000
- Address: 393 Moltonville Rd, Clinton, NC 28328
- Bedrooms: 3
- Bathrooms: 2 Full Baths
- Square Footage: 2,152 sq. ft.
- Lot Size: 7.82 Wooded Acres
- Year Built: 1848 (Relocated and preserved)
This expansive acreage and rich history make this a standout residence for sale in the local market. The generous lot size and competitive pricing provide a rare opportunity for anyone seeking a unique property for sale with significant land.
Interior & Historic Features
- Historic Character: Original wood floors, solid wood doors, and hand-crafted masonry throughout.
- Fireplaces: Three separate fireplaces, one located in each bedroom.
- Modernized Kitchen: Thoughtfully updated with new cabinetry, countertops, and appliances.
- Main Suite: Features a private suite bathroom for modern convenience.
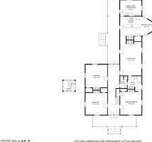
- Layout: Single-level living (one level) with an entrance foyer and master bedroom downstairs.
- Climate Control: Equipped with central air and a natural gas heat pump.
The interior masterfully blends 19th-century charm with the contemporary amenities expected in a high-quality house for sale today. You will find that the preserved vintage windows and original craftsmanship create a living experience unlike any other residence for sale.
Exterior & Construction
- Structure: Wood frame construction with classic wood siding.
- Roof: Durable metal roofing.
- Outdoor Living: Covered front porch and a wooden porch swing for enjoying the surroundings.
- Land Use: 7.82 acres of partially wooded and cleared land, offering privacy and serenity.
- Utilities: Natural gas connected and on-site well water.
- Parking: On-site unpaved parking available.
The exterior grounds offer nearly eight acres of natural beauty, making this an ideal property for sale for those who value privacy and outdoor space. Its historic architecture and updated metal roof ensure this house for sale remains a timeless landmark in Clinton.
Step back in time with this stunning historic home, originally built in 1848 as a stagecoach station and later serving as a train station in Warsaw, before being carefully relocated to 7.82 wooded acres in Clinton. Rich with character, the home showcases preserved original wood floors, solid wood doors, hand-crafted masonry, and vintage windows that tell its story.
Offering three bedrooms, each with its own fireplace, the residence blends historic charm with modern comforts. The kitchen has been thoughtfully updated with new cabinetry, countertops, and appliances, while two full bathrooms include a private suite bath for the main bedroom.
Every detail reflects a commitment to maintaining the home’s authenticity while adding the conveniences of today. This one-of-a-kind property offers the rare opportunity to own a piece of history surrounded by natural beauty—perfect for those who value timeless craftsmanship and serene acreage living.











































