Check out those brick ceilings!! 10 fireplaces and 55 acres. C. 1900 in Massachusetts.
- Price: $1,200,000
- Address: 24 W Oxbow Rd, Charlemont, MA 01339
- Status: Active (as of Jan 2026)
- Type: Single Family Residence (Gambrel Colonial Timber Frame)
- Year Built: 1900 (Reproduction-quality construction over a 20-year period)
Key Specifications
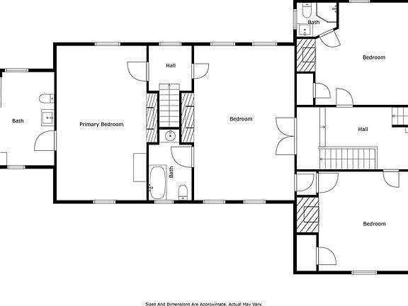
- Bedrooms: 6 (Includes 3 en-suite bedrooms)
- Bathrooms: 5 (All full baths)
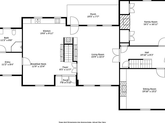
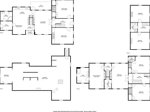
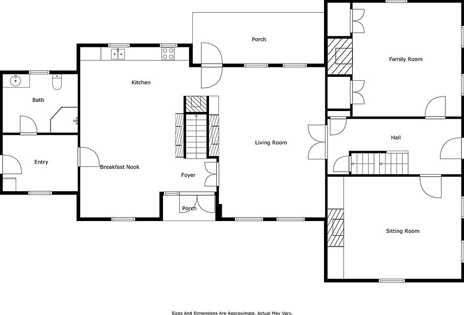
- Interior Living Area: 4,473 sq. ft.
- Lot Size: 53–55 Acres (Reports vary slightly between sources)
Main Features & Craftsmanship
- Architectural Detail: Museum-grade reproduction construction by master carpenter Arnold Jones.
- Interior Elements:
- 10 Fireplaces and a brick cooking oven.
- High-level masonry: Features an arched brick ceiling over the staircase.
- Woodwork: Chamfered exposed beams, carved shell cupboards, raised panel walls, wainscot, and doors with authentic mortise and tenon joinery (secured with wooden pegs).
- Flooring: Wide plank flooring and tile.
- Windows/Doors: Period doghouse dormers, transom windows, and custom doors with reproduction hardware.
- Land & Exterior:
- Landscape: Massive acreage featuring ponds, meadows, woodlands, and a fruit orchard.
- Waterfront: Property is considered waterfront with pond and river views.
- Roof: Authentic slate roof.
- Horse Facilities: Horses are permitted on the property.
Utilities & Location
- Heating: Baseboard, Radiant, Oil, Wood, and Fireplace.
- Cooling: None.
- Water/Sewer: Private water and private sewer system.
- Location: Situated along the scenic Mohawk Trail, offering four-season recreation and easy highway access.
- Taxes: Annual property tax is approximately $17,471.




























