Stunning stone work and 20 acres! C. 1820 in New York. $639,000.
Property Details & Features
Core Information
- Price: $639,000
- Address: 668 N Chodikee Lake Rd, Highland, NY 12528
- Year Built: 1820 (William Brooks House, Ulster County Historic Registry)
- Bedrooms: 4
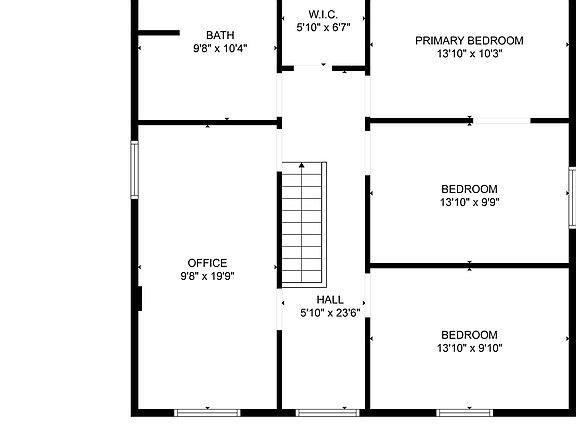
- Bathrooms: 1.5 (Oversized full bath with vintage tilework)
- Square Footage: 2,244 sq. ft.
- Lot Size: 20.7 Acres
This historic stone farmhouse features a spacious four-bedroom layout and sits on over 20 acres of private land. It is a truly unique residence for sale that blends 19th-century character with plenty of room to roam.
Interior Highlights
- Living Room: 30-foot expansive living area featuring a classic fireplace.
- Kitchen: Renovated with custom dovetail cabinetry, a 48-inch range, hood, and pot filler.
- Flooring & Detail: Original hardwood floors throughout and classic recessed windows with stunning glass panes.
- Storage: Large central walk-in closet located on the second floor.
- Porch: End-to-end screened side porch overlooking a private meadow.
The interior boasts a chef’s kitchen and a massive living room designed for comfort and hosting. You will find that this property for sale offers the perfect mix of historic detail and modern functionality.
Exterior & Additional Structures
- Standalone Studio: Separate building includes a two-car garage, finished library room, and dedicated office space.
- Landscape: A mix of open meadows and dense woods, accessed by a long driveway with stacked-bluestone walls.
- Modern Upgrades: Whole-house Generac generator and ductless heating/AC systems (installed 2015).
- Location: Minutes from the Walkway Over the Hudson, New Paltz, and the Poughkeepsie Amtrak/MetroNorth station.
The grounds include a versatile standalone studio and garage, making it an ideal compound for those who work from home. This is an incredible opportunity to own a secluded house for sale in one of the Hudson Valley’s most sought-after locations.
From Zillow
Welcome to Stonewall Farm, a rare 20-acre retreat featuring a charming 19th Century stone house and outbuilding less than two hours from Manhattan and minutes from the New Paltz village center. Privately set at the end of a long driveway flanked on each side by its namesake stacked-bluestone walls, the property features both meadows and woods plus its signature foursquare stone farm house built in 1820 by William Brooks and listed on Ulster County’s historic registry. The house features a 30-foot living room with fireplace opening to an end-to-end screened side porch overlooking a meadow. The dining room also has a fireplace, and the renovated kitchen features custom dovetail jointed cabinetry, a gourmet 48-inch range with hood and pot filler, and other high-end appliances, plus an adjoining half bathroom. Upstairs are four bedrooms, an oversized full bathroom with spotless vintage tilework still in place, and a large central walk-in closet for storage. Throughout the house are classic recessed windows with stunning glass panes, hardwood floors and plenty of light. The property also includes a standalone studio building with a two-car garage plus a finished library room and office space, perfect for at-home work, overflow guests or additional storage. Recent upgrades include a whole-house Generac generator and ductless central-air and heating systems, installed in 2015. This a unique opportunity to own a remarkably private compound, minutes by car or bicycle from the Walkway Over the Hudson, MetroNorth and Amtrak train service in Poughkeepsie, and the charms of New Paltz, one of the Hudson Valley’s most popular college towns.
































