Stunning 3.5-story tower! C. 1888 landmark in Little Rock. $1,550,000.
Property Features
Core Details
- Price: $1,550,000
- Address: 2120 Louisiana St, Little Rock, AR 72206
- Bedrooms: 10
- Bathrooms: 10.5 (10 full, 1 half)
- Square Footage: 9,500 sqft
- Lot Size: 0.49 Acres
- Year Built: 1888
This historic masterpiece offers an incredible amount of space and character for anyone looking at a unique house for sale. With its massive floor plan and landmark status, it stands out as a premier investment opportunity.
Architectural & Interior Highlights
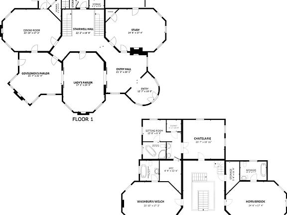
- Design: Exquisite Queen Anne Victorian architecture (Hornibrook Mansion).
- Unique Features: 3.5-story corner tower, octagonal-shaped rooms, and a rare divided stairway.
- Artistic Details: Original stained-glass skylight and intricate woodwork throughout.
- Living Areas: Separate dining room, breakfast bar, and gourmet eat-in kitchen.
- Finishes: A mix of wood, tile, and parquet flooring paired with gas log decorative fireplaces.
The interior craftsmanship found here is rarely seen in a modern residence for sale today. These timeless architectural details ensure that the home remains a crown jewel of the neighborhood.
Property Amenities & External Features
- Parking: 4-car parking pad and a side-facing garage.
- Outdoor Space: Large patio, porch, and a partially fenced yard with wrought iron and wood.
- Bonus Structures: Includes a separate guest house and a dedicated shop area.
- Status: Offered fully furnished and turnkey (currently operating as “The Empress of Little Rock” B&B).
- Awards: AAA 4 Diamond rating and a Michelin-recognized property.
Whether you intend to keep it as a luxury inn or a private estate, this is a truly rare property for sale. The addition of a guest house and professional-grade amenities makes it a versatile find in the heart of the South.
From Zillow
The Hornibrook Mansion, built in 1888, stands as a historic landmark celebrated for its extraordinary Queen Anne architecture—one of the finest examples of the style in the nation. Listed on the National Register of Historic Places, it is now best known as The Empress of Little Rock, a beloved tourism icon and thriving Bed & Breakfast that welcomes guests from around the globe.
For over two decades, The Empress has been a symbol of hospitality, earning the prestigious AAA 4 Diamond rating and is the only Michelin hotel in the state. With exclusive licensing and permits for use as an event space or intimate wedding venue, the property offers untapped potential for significant revenue growth. The mansion’s unique architectural features—including a divided stairway, a 3 ½-story corner tower, a stained-glass skylight, and octagonal-shaped rooms—showcase the grandeur of late-19th-century design.
This expansive property is being offered fully furnished and turnkey, ready to continue operating as a business, or it can be purchased as a furnished private residence. This is a rare opportunity to own one of the most iconic and historically significant homes in the South.















































