1014 Washington Ave, South Boston, VA 24592
$398,500 | 1888 | 4,608 Sq. Ft. | 5 Beds | 5 Bath | 1.04 Acres Lot

Nestled in the heart of South Boston’s Historic District, the Vaughan House at 1014 Washington Avenue stands as a magnificent example of Victorian Italianate architecture—an enduring symbol of craftsmanship, artistry, and grace. Built in 1888 and listed for $398,500, this stately 4,608-square-foot residence embodies the grandeur of the late 19th century while offering the comfort and practicality of modern living. Set on a beautifully landscaped 1.04-acre lot, the home has been meticulously preserved and thoughtfully updated, ensuring that its architectural integrity remains intact while providing all the amenities expected in a modern residence.
Approaching the property, visitors are immediately struck by its commanding façade. The symmetrical proportions, bracketed cornices, and tall, narrow windows characteristic of the Italianate style speak to an era of refinement and ambition. The wraparound porch, supported by detailed columns and adorned with gingerbread trim, invites guests to pause and admire the elegance of its design. Every aspect of this home—from its decorative woodwork to its grand roofline—evokes a sense of timeless beauty that has captivated generations.
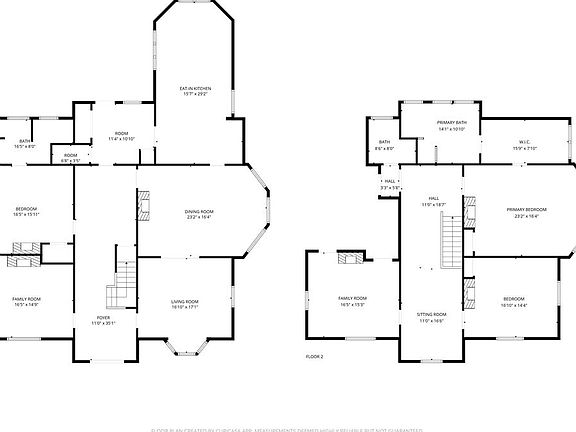
Stepping through the front door, one is transported into another century. The high ceilings, elaborate plaster medallions, and ornate woodwork reveal the meticulous attention to detail that defined the craftsmanship of the late Victorian era. The grand central hall is anchored by an elegant staircase that gracefully curves toward the second floor, its polished handrail and carved balusters glistening in the natural light that pours through tall windows. This architectural centerpiece is both a functional passageway and a work of art in itself, setting the tone for the rest of the home.

The formal living and dining rooms showcase the best of 19th-century design—each with its own ornate fireplace surrounded by original tilework and hand-carved mantels. The wood floors gleam with a rich patina that only time can produce, while large windows invite the sunlight to dance across their surfaces. These rooms were designed for gatherings, reflecting the social customs of the period, when entertaining was a reflection of one’s taste and refinement. The high ceilings not only enhance the sense of space but also speak to the architectural ambition of the era, when proportions were designed to inspire awe and admiration.
The kitchen, though thoroughly modernized, harmonizes beautifully with the home’s historic character. Upgraded stainless-steel appliances—carefully integrated into custom cabinetry—make it a functional and inviting space for today’s lifestyle. Granite countertops, ample storage, and generous workspace allow for both casual family meals and formal entertaining. While the kitchen embraces contemporary efficiency, its finishes and details remain respectful of the home’s vintage spirit, preserving the balance between old-world charm and modern convenience.
The home’s layout, defined by its central hall design, provides a natural and intuitive flow from one space to another. Each room connects gracefully, offering both openness and intimacy. The parlor and library, each featuring one of the home’s seven fireplaces, provide perfect settings for quiet reading or evening conversation. Intricate moldings, pocket doors, and period light fixtures add layers of historical richness throughout the interior.

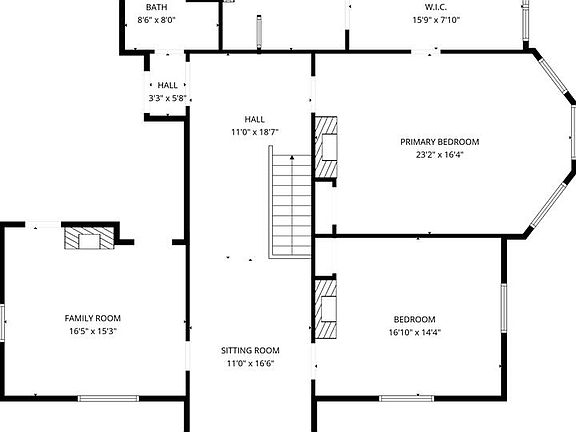
Upstairs, the Vaughan House continues to impress with spacious, light-filled bedrooms that combine historical detail with comfort. The high ceilings and tall windows maintain the home’s airy and elegant atmosphere, while updated bathrooms and closets ensure modern ease of living. The primary suite, with its original mantel and generous proportions, exudes warmth and sophistication. Additional bedrooms offer flexibility for family, guests, or home office use, each room imbued with the charm and craftsmanship of another era.
Throughout the home, the fusion of past and present is seamless. The updates—electrical, plumbing, and heating systems—have been carefully integrated to preserve the architectural authenticity while ensuring that the residence functions beautifully in today’s world. Every element, from the polished wood floors to the plaster ceiling medallions, has been maintained or restored with reverence for the home’s original artisans.
The Vaughan House is more than just a private residence—it is a piece of history. As a property listed on the National Register of Historic Places, it holds both architectural and cultural significance within South Boston’s storied past. In the late 19th century, this region was experiencing rapid growth and prosperity, and homes like this one served as symbols of aspiration and civic pride. To own such a property today is to become a steward of that history, preserving not only a structure but also the story it tells about the community’s evolution.

Outside, the home’s landscaped grounds enhance its historic charm. The one-acre lot is adorned with mature trees, lush lawns, and thoughtfully designed garden beds that create an atmosphere of tranquility. The wraparound porch offers a perfect vantage point for enjoying the view, whether sipping coffee on a quiet morning or hosting friends on a summer evening. The scale and composition of the grounds mirror the elegance of the home itself, emphasizing balance, proportion, and grace.
Architecturally, the Victorian Italianate style represents a unique moment in American design history—a bridge between the romanticism of earlier 19th-century styles and the grandeur that would define the Gilded Age. Characterized by its decorative brackets, overhanging eaves, and tall, arched windows, the Italianate form brought European sophistication to small-town America. The Vaughan House exemplifies this ideal perfectly, translating Old World ornamentation into a distinctly American idiom that celebrates craftsmanship and individuality.
Within the broader context of real estate and architectural preservation, homes like this are rare treasures. They embody a level of artistry and attention to detail that is seldom replicated today. While new construction often focuses on efficiency and minimalism, the Vaughan House is a reminder of an era when design was deeply personal—when every molding, every tile, and every staircase told a story of pride and artistry. This home stands as a living museum of that tradition, yet it is far from static; its thoughtful modern updates ensure it remains fully relevant for contemporary living.

For those seeking a historic home for sale that combines authenticity with livability, this property represents a truly exceptional opportunity. Its location within South Boston’s Historic District places it among other notable period homes, creating an environment rich in architectural heritage and community pride. The area’s walkable streets, tree-lined avenues, and proximity to local amenities make it ideal for those who value both history and convenience.
This residence would make an ideal family home, a refined second residence, or even a boutique bed and breakfast, given its size and character. Its five bedrooms and five bathrooms offer flexibility and space, while the property’s scale and grandeur lend themselves naturally to hospitality. The high ceilings and grand public rooms provide a dramatic backdrop for gatherings and events, while the landscaped gardens offer outdoor beauty to match the interior’s refinement.
Beyond its architectural and historical value, the Vaughan House represents something larger—a connection to a time when American craftsmanship reached its artistic peak. The care with which this home was constructed in 1888, and the devotion with which it has been maintained since, are palpable in every detail. Owning such a residence is not simply a matter of purchasing real estate; it is about embracing a legacy and continuing a story that has been unfolding for more than a century.

As the late afternoon sun filters through the trees and casts golden light across the porch, it’s easy to imagine the generations who have walked these halls, celebrated in these rooms, and found solace in the home’s embrace. The Vaughan House stands today as it did over 135 years ago—dignified, welcoming, and full of life. It is a testament to the endurance of true architecture and the timeless appeal of historic homes that continue to inspire awe.
For the discerning buyer seeking a residence that embodies history, artistry, and comfort, 1014 Washington Avenue offers something beyond compare. It is not merely a house for sale—it is a living piece of South Boston’s architectural heritage, a place where old-world craftsmanship meets modern sensibility. The Vaughan House invites you to step inside, slow down, and experience the elegance of a bygone age brought seamlessly into the present.
Photos:


































































Listed by:
Rebecca Vest
Southern Pine Realty Solutions – Halifax
Also listed on Zillow!